




















































Get additional information including price lists and floor plans.
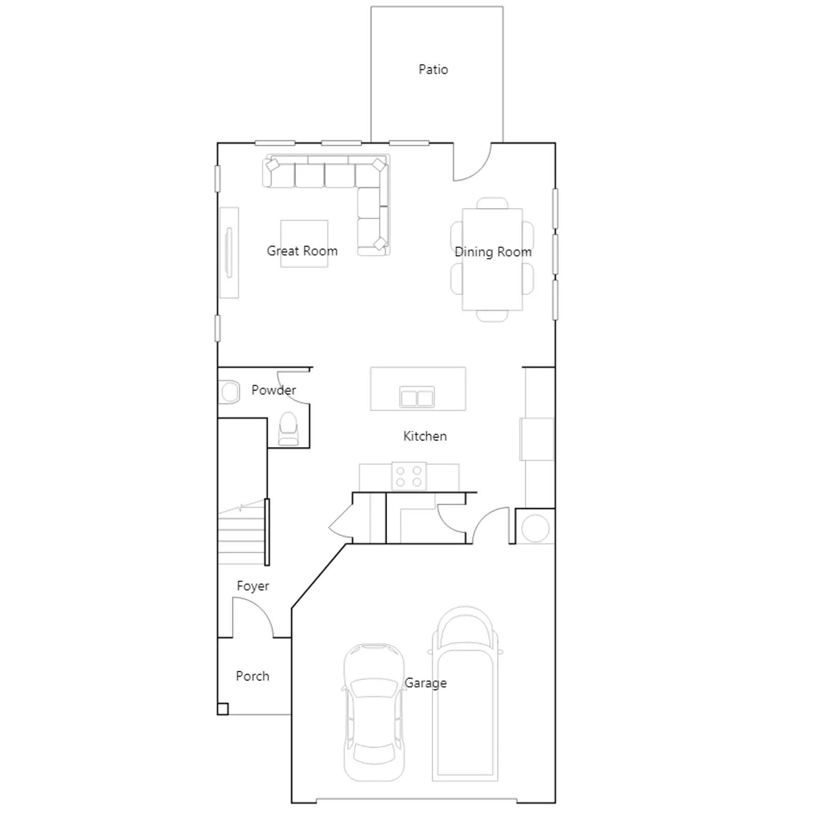
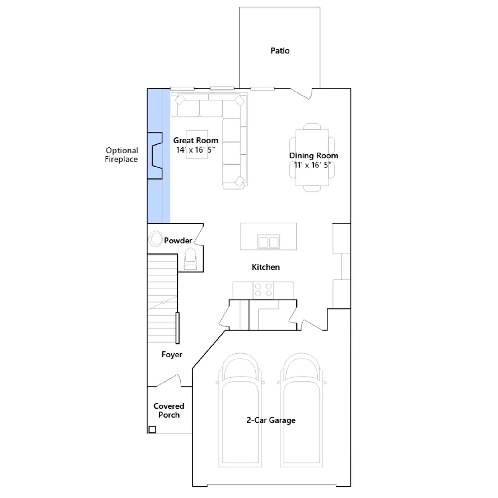
This new two-story townhome was designed with busy lifestyles in mind. The main level has a Great Room for gatherings, a dining room for memorable meals, a kitchen for inspired cooking and a patio for outdoor living. Upstairs is a versatile loft and three bedrooms including the owners suite with a private bathroom and walk-in closet.
Stay informed with Livabl updates on new community details and available inventory.