

































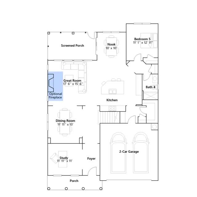
This new two-story home design combines comfort and style. The first floor showcases an open-plan layout among a Great Room for shared moments, a casual and formal dining area for memorable meals and a kitchen for inspired cooks. A screened porch with an optional patio/deck enhances outdoor enjoyment, and a study off the foyer offers privacy. Occupying the top floor are four bedrooms, including the luxurious owners suite with a retreat, plus a spacious game room and loft for versatile needs.
Stay informed with Livabl updates on new community details and available inventory.