hero-image-0

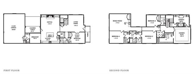
Homesite 69

Dunwoody Green
Sold
Sold
5
4
3,300
Homesite 69 details
unit-banner-image
unit-banner-image
unit-banner-image
Homesite 69 is now sold.
Check out available communities below.