hero-image-0

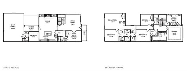
The Riverwood Plan

Dunwoody Green
Sold
Sold
5
4
From 3,300
unit-banner-imageunit-banner-imageunit-banner-image
The Riverwood Plan details
The Riverwood Plan is now sold.
Check out available communities below.