hero-image-0
hero-image-1

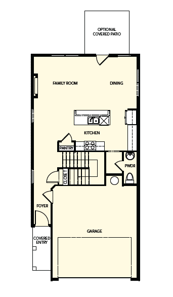
2413 Chene Drive

By

McKinley Homes

   |   

Riviere

Riviere
Sold
Sold
3
2
1
1,896
2413 Chene Drive details
unit-banner-image
unit-banner-image
unit-banner-image
2413 Chene Drive is now sold.
Check out available nearby townhomes below.