hero-image-0

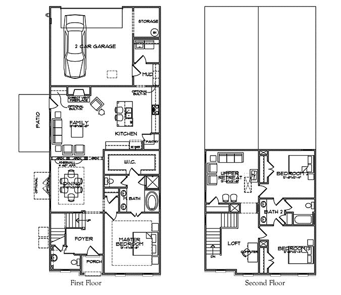
The Wyndam Plan

Bellmoore Park
Sold
Sold
3
2
1
From 2,362
unit-banner-imageunit-banner-imageunit-banner-image
The Wyndam Plan details
The Wyndam Plan is now sold.
Check out available communities below.