



















Images coming soon
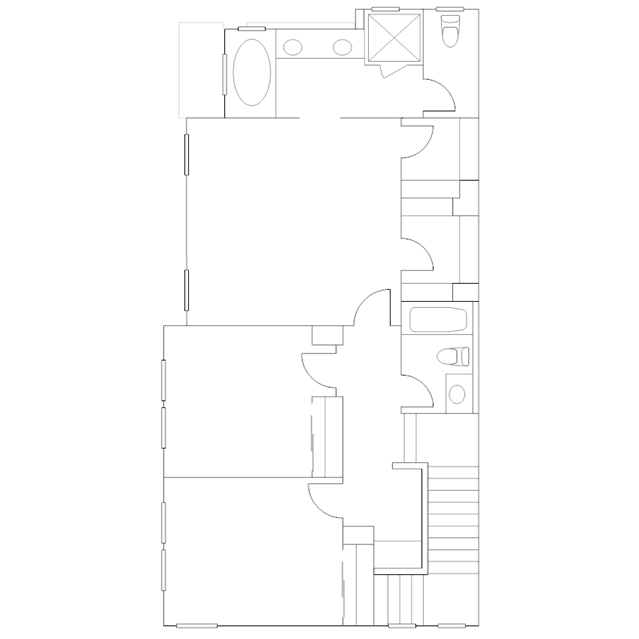
A spacious and versatile bedroom is located on the first floor of this three-story paired home or single-family home, with a full bathroom across the hall. The family room, kitchen and dining room are arranged among a contemporary and convenient open floorplan on the second level, with access to a balcony for seamless indoor-outdoor living. Three more bedrooms, including the luxe owners suite, are on the top level.