

















































Images coming soon
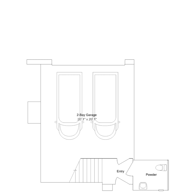
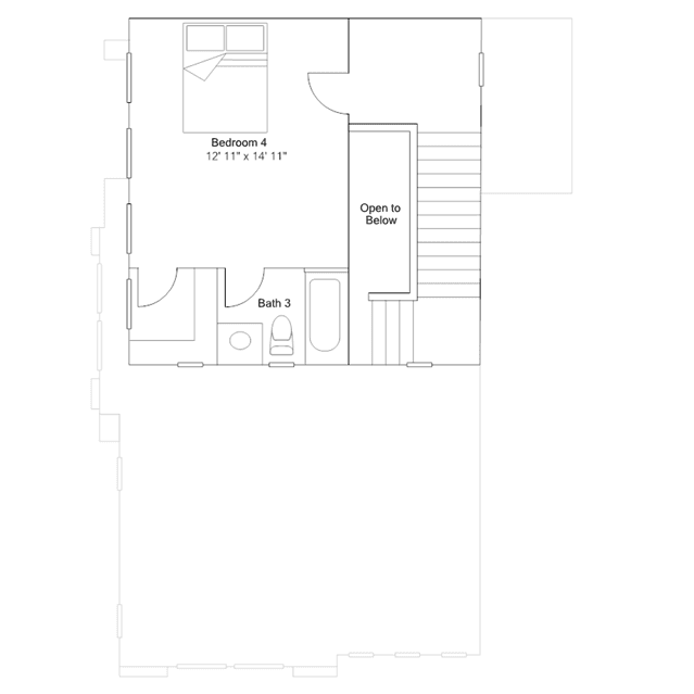
A first-floor entry leads upstairs, where the kitchen, dining room and family room share a convenient open floorplan. Three bedrooms occupy the third floor, including the luxurious owners suite which features a spacious bedroom, an en-suite bathroom and a walk-in closet. A spacious fourth bedroom is found on the top floor, complete with an en-suite bathroom. The fourth bedroom could also be converted into an additional living space.