


































Images coming soon
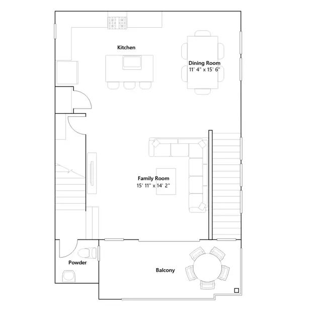
A first-floor entry off the two-bay garage leads directly upstairs, where the kitchen, dining room and family room share a convenient and contemporary open floorplan. Sliding glass doors open up to a balcony for effortless indoor-outdoor living and entertaining. Three bedrooms occupy the third level, including the luxurious owners suite with a private attached bathroom and a walk-in closet. The top level hosts a fourth bedroom with an en-suite bathroom.