







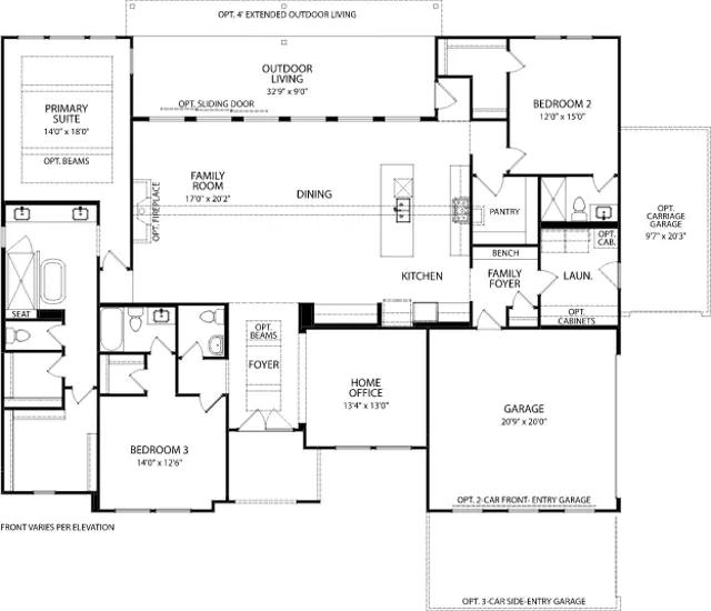
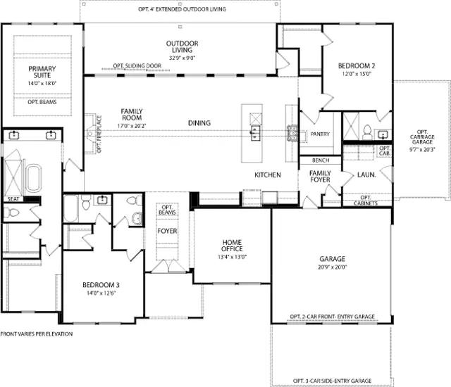
The Danielle floor plan offers a blend of functionality and elegance. This thoughtfully designed layout features spacious living areas ideal for both relaxation and entertainment. With an emphasis on modern living, the Danielle boasts an open-concept kitchen, inviting family room, and luxurious primary suite. Ample windows allow natural light to flood the space, enhancing the ambiance. Additionally, customizable options ensure that homeowners can tailor the plan to suit their unique preferences and lifestyle. Whether you're hosting gatherings or enjoying quiet moments at home, the Danielle floor plan provides the perfect backdrop for creating lasting memories.
Stay informed with Livabl updates on new community details and available inventory.