

















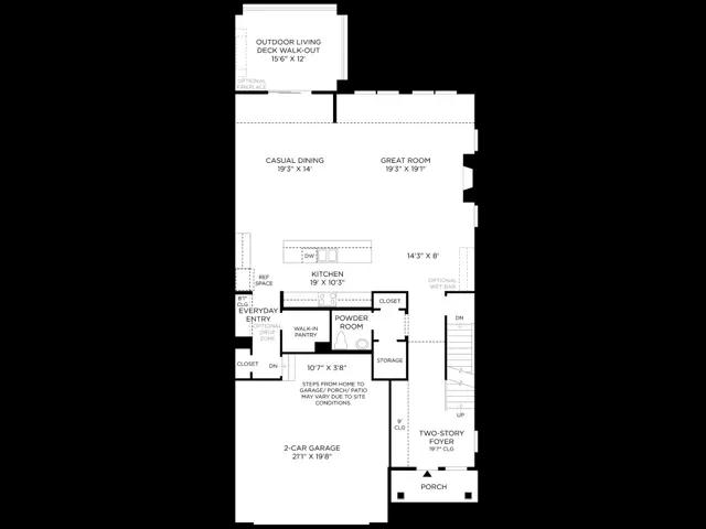
The Derby Elite's impressive porch and two-story foyer hall flow into the expansive great room saturated in natural light. The kitchen features a large center island with breakfast bar overlooking the casual dining area. Additionally, the kitchen offers plenty of counter and cabinet space and sizable walk-in pantry alongside the home s spacious everyday entry. The superb primary bedroom suite is enhanced by a spacious walk-in closet and amazing primary bath with dual-sink vanity and luxe shower with seat. Secondary bedrooms open to a generous loft, and feature walk-in closets and shared hall bath. Additional highlights include a convenient powder room, centrally located laundry, and additional storage.