





















































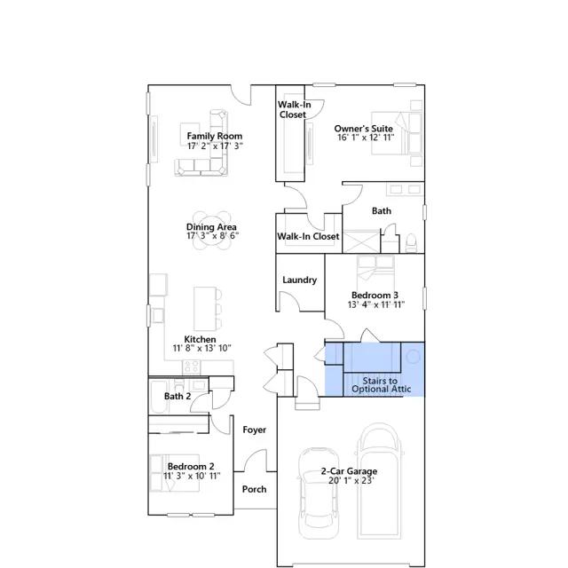
This cozy single-story home features a low-maintenance layout with an open-concept kitchen, dining area and family room that leads out to the backyard. Near the foyer are two comfortable bedrooms that can be used for a home office or hobby room, while the spacious owners suite is tucked away in the back for added privacy. A two-car garage for versatile storage room completes the home.
Stay informed with Livabl updates on new community details and available inventory.