
























































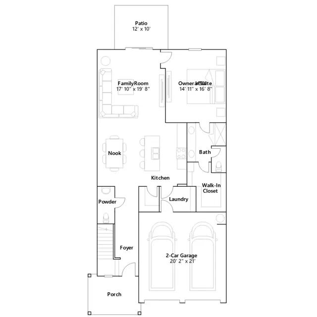
This modern single-family home presents two floors made for comfort and entertainment. On the first floor is a dedicated open-concept main living area which connects to the patio for seamless indoor-outdoor activities. In a private corner is the serene owners suite with an attached bathroom and walk-in closet. Residing on the upper level are four bedrooms and a versatile loft to add shared space.
Stay informed with Livabl updates on new community details and available inventory.