





































































































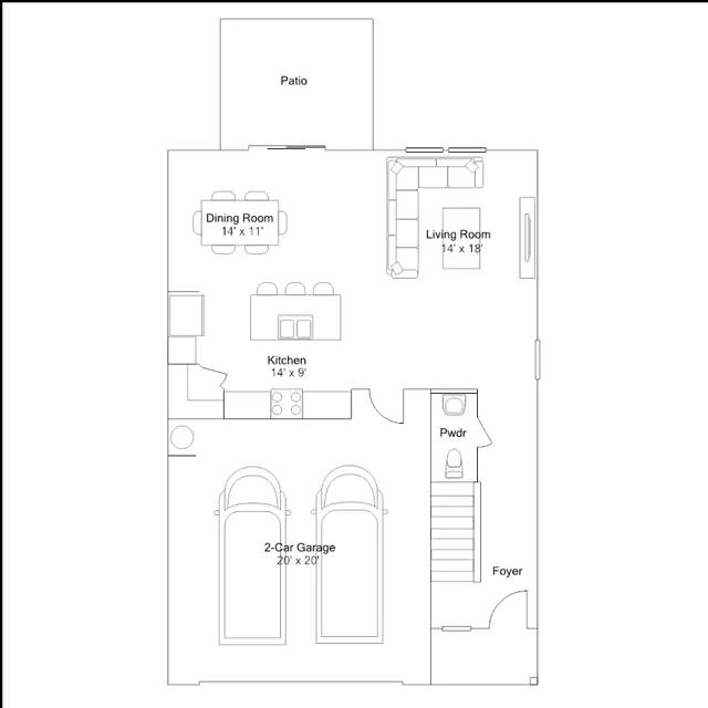
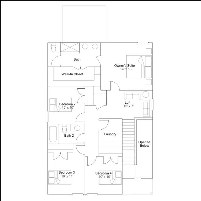
This new two-story home delivers modern comfort with ample room to grow and entertain. Upon entry is a double-height foyer that flows to a spacious open-concept main living area with direct access to a rear patio. The second level is occupied by a large loft for additional shared living space and all four bedrooms, including the private owners suite with a full-sized bathroom. A two-car garage completes the home.
Stay informed with Livabl updates on new community details and available inventory.