


























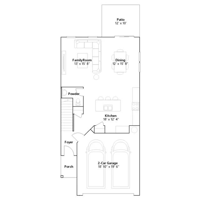
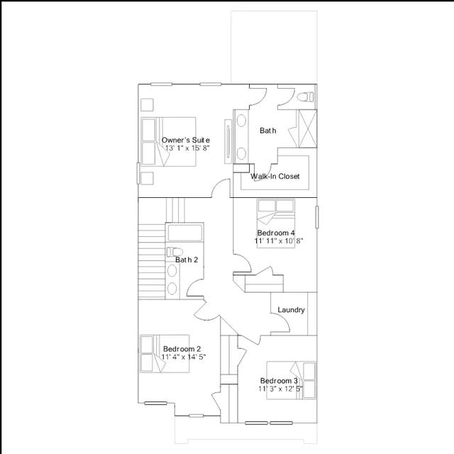
This new two-story home features a modern kitchen with a center island, seamlessly connecting to a family room perfect for entertainment and an intimate dining area. Nearby is a rear patio for outdoor moments. Residing on the top floor are all four bedrooms to ensure maximum privacy. The large owners suite boasts an attached bathroom and oversized walk-in closet for enhanced livability. Completing the home is a convenient two-car garage.
Stay informed with Livabl updates on new community details and available inventory.