







































































Get additional information including price lists and floor plans.
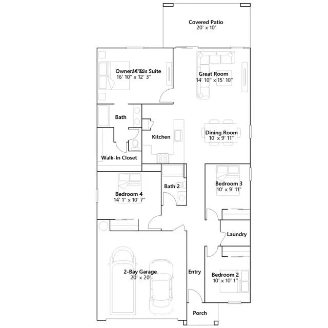
This new four-bedroom home boasts a low-maintenance design contained to a convenient single level. Three secondary bedrooms are located off the entry, leading to a spacious and flexible open-concept floorplan shared between the kitchen, living and dining areas. A covered patio is ready for effortless outdoor entertainment and leisure. The luxe owners suite is tucked into a private rear corner with a spa-inspired bathroom and walk-in closet.
Stay informed with Livabl updates on new community details and available inventory.