4408 Carnation Dr
Sweetwater Springs
Sherman
3610 River Creek Trail
Heritage Ranch: 50ft. lots
3406 Tomahawk Dr
5048 Westhaven Circle
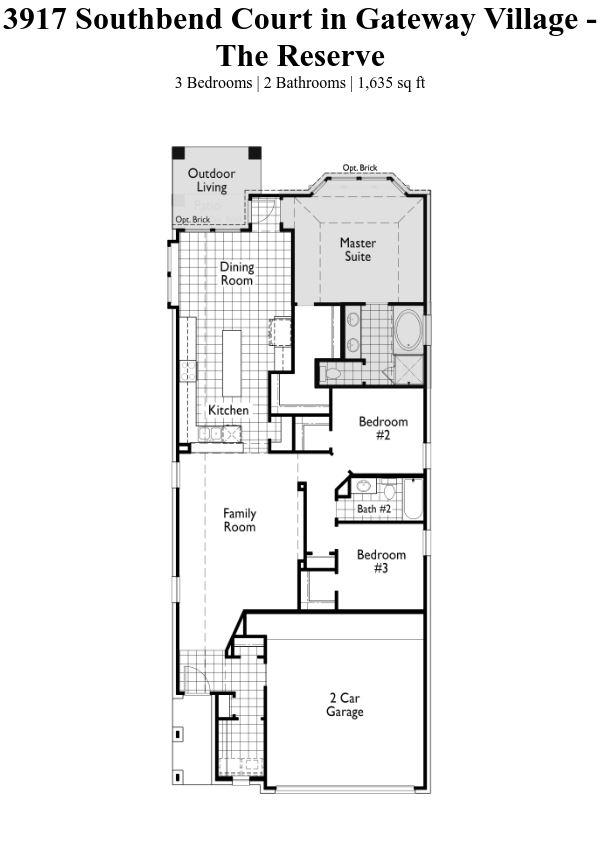
Gateway Village - The Reserve: 50ft. lots
Denison
3409 Tomahawk Dr
407 Sagebrush Trail
Heritage Ranch
5121 Westhaven Circle
Gateway Village - The Reserve: 45ft. lots
4322 Carnation Dr