

































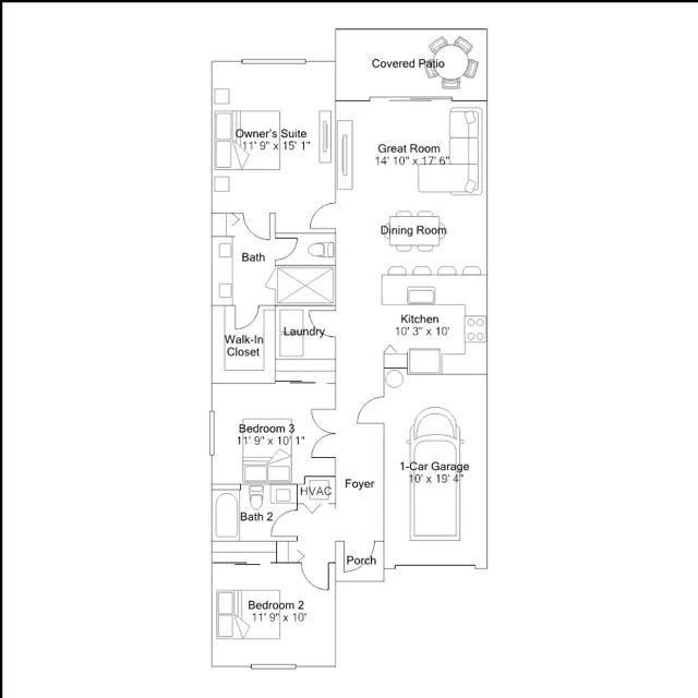
Exclusive to active adults 55+ and better, this new single-story home makes great use of the space available. With three bedrooms in total, the owners suite with full-sized private bathroom is situated at the back of the home while the others are up near the front. The Great Room easily flows to the kitchen, dining room and a covered patio ideal for indoor-outdoor living.
Stay informed with Livabl updates on new community details and available inventory.