New Homes for Sale
Articles
Professionals
Log in
Sign up
Photos 21
Videos 0
Map
Interactive floor plan 0
Virtual 0
4010 Bryce Manor Lane
By
D.R. Horton
   |  Â
Brycewood Lakes Townhomes
Community
Get updates
Save
Request info
Request info
Community
Request info
Get updates
Save
Request info
Brycewood Lakes Townhomes
Get updates
Request info
Sold
Sold
2
2
1
1,461
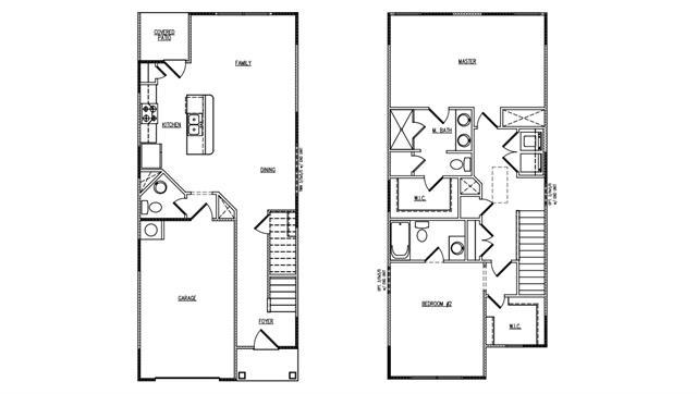
4010 Bryce Manor Lane details
Address:
Â
Decatur, GA 30034
Plan type:
Â
Two+ Story
Beds:
Â
2
Full baths:
Â
2
Half baths:
Â
1
SqFt:
Â
1,461
Ownership:
Â
Condominium
Interior size:
Â
1,461 SqFt
Lot pricing included:
Â
Yes
4010 Bryce Manor Lane is now sold.