New Homes for Sale
Articles
Professionals
Log in
Sign up
Photos 1
Videos 0
Map
Interactive floor plan 0
Virtual 0
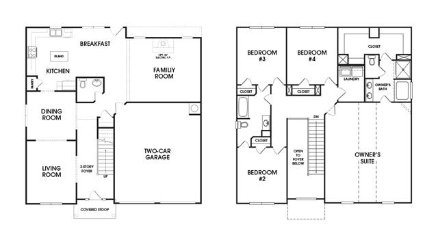
Packard Plan
By
D.R. Horton
|
Brayden Park
Community
Available homes
Get updates
Save
Request info
Request info
Community
Available homes
Request info
Get updates
Save
Request info
Brayden Park
Get updates
Request info
Sold
Sold
4
2
1
From 2,720
Packard Plan details
Address:
Decatur, GA 30034
Plan type:
Detached Two+ Story
Beds:
4
Full baths:
2
Half baths:
1
SqFt:
From 2,720
Ownership:
Fee simple
Interior size:
From 2,720 SqFt
Lot pricing included:
Yes
Packard Plan is now sold.