hero-image-0
hero-image-1
hero-image-2

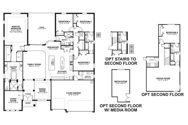
Brookshire II Fl Plan

By

M/I Homes

   |   

Riviera Bella

Riviera Bella
Sold
Sold
4
3
From 2,819
Brookshire II Fl Plan details
Brookshire II Fl Plan is now sold.
Check out available nearby plans below.