












































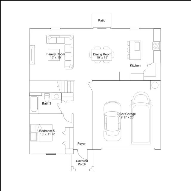
The first floor of this two-story home shares an open layout between the kitchen, dining area andfamily room for easy entertaining with access to the patio. A secondary bedroom on the first floor can easilybe convertedto a guest room or home office. Upstairs is a versatile loft that serves as an additional shared living space, along with three secondary bedrooms and a luxe owner's suite comprised of an en-suite bathroom and a large walk-in closet.
Stay informed with Livabl updates on new community details and available inventory.