
























































Get additional information including price lists and floor plans.
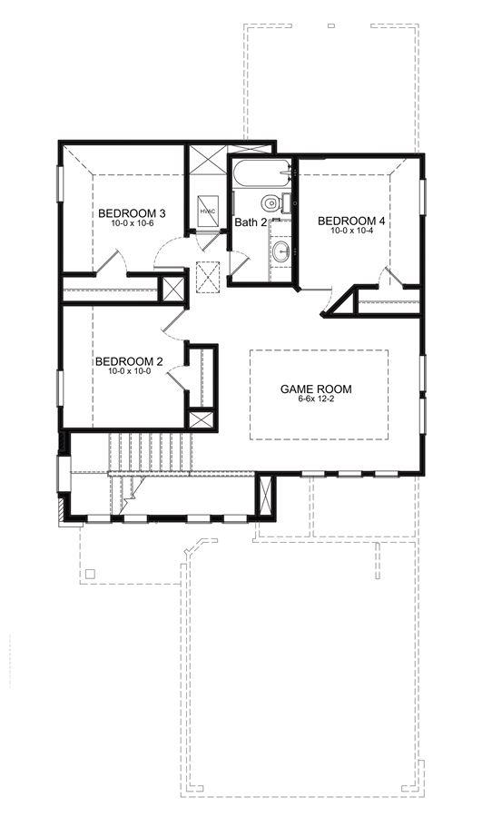
The Vail floorplan is a stylish and functional four-bedroom, two-and-a-half bath home. The open living and dining areas seamlessly flow into the kitchen, creating a welcoming atmosphere for gatherings. The generously sized owner's suite features an ensuite bathroom for a private retreat, while the upstairs gameroom offers additional space for recreation and relaxation. Personalize your Vail home with optional upgrades, such as a covered back patio or an expanded patio for even more space to entertain. Enhance the owner's bathroom with a walk-in shower, making this floorplan both practical and luxurious.
Stay informed with Livabl updates on new community details and available inventory.