










Get additional information including price lists and floor plans.
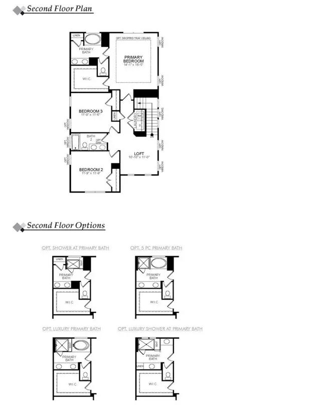
The Burke is a charming two story three bedroom two and a half bath home with a spacious family room a kitchen with an island and pantry and a separate breakfast area. The upstairs features the primary bedroom two additional bedrooms a loft a full bath and laundry. Options available to personalize your home include a covered rear porch screen porch or sunroom an expanded garage storage area an expanded informal dining area and several primary bath layout options.
Stay informed with Livabl updates on new community details and available inventory.