hero-image-0
hero-image-1

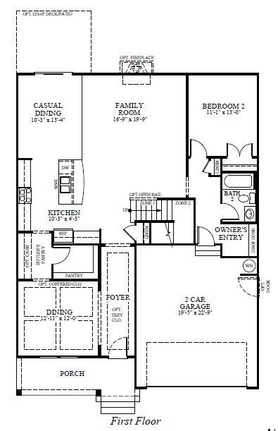
Hampshire Plan

Farm at River Pointe
Sold
Sold
4
3
From 3,113
unit-banner-imageunit-banner-imageunit-banner-image
Hampshire Plan details
Hampshire Plan is now sold.
Check out available nearby plans below.