hero-image-0
hero-image-1

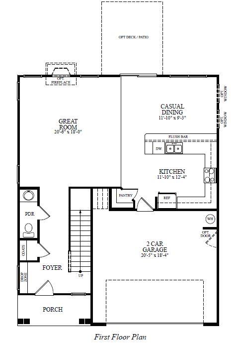
Gloucester Plan

Farm at River Pointe
Sold
Sold
3
2
1
From 2,173
unit-banner-imageunit-banner-imageunit-banner-image
Gloucester Plan details
Gloucester Plan is now sold.
Check out available nearby plans below.