














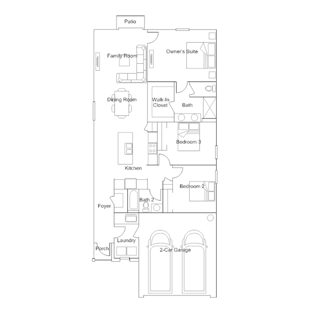
A single-story home with a free-flowing design shared by the kitchen, dining room and family room, which extends to a patio for outdoor living. Two secondary bedrooms are conveniently situated near the kitchen, while the generous owners suite is tucked at the end for privacy, complete with a walk-in closet.