

































































Get additional information including price lists and floor plans.
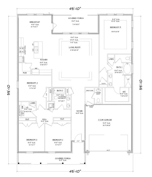
Welcome to the Victoria floorplan in Jubilee Farms in Daphne, Alabama! This desirable floorplan in a single-story home with 4 bedrooms, 2.5 baths, and a 2-car garage. This home boasts 2,306 square feet of space. The Victoria also offers several different elevations with excellent curb appeal. The Victoria has a fabulous open eat-in kitchen featuring a walk-in pantry and island that overlooks the oversized living room filled with natural light from large windows and elevated ceilings that lead outside to a covered porch for an extended living space. You will love the private bedroom with a roomy ensuite which includes a double bowl vanity, 5 shower, soaking tub and large closet. The additional 3 bedrooms are located at the front of the home and include large closets and a private hall & bath with double bowl sinks. Several of the Victoria elevations include ...
Stay informed with Livabl updates on new community details and available inventory.