


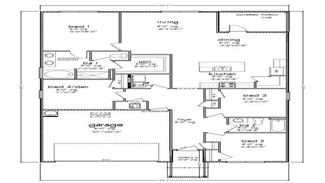
The Cali is a 1,791 sq.ft., 4 bed, 2 bath, 2 car garage floorplan. As you enter the Cali, the foyer leads to the fabulous open kitchen featuring a walk-in pantry and large island (with overhang) that overlooks the dining and living room combination leading outside to a covered porch for an extended living and entertaining space. A large bedroom with ensuite, double bowl vanity, 5 shower, soaking tub and large walk-in closet. The Private Suite is filled with natural light from large windows creating an inviting, spacious retreat. The second and third bedrooms are to the front of the home, on either side of the second full bath. The fourth bedroom is directly across from the second and third bedrooms. Multiple storage closets to store all your accessories, laundry room, and big pantry has plenty of room. This home is a ''Smart Home,'' a standard...