












































































































































































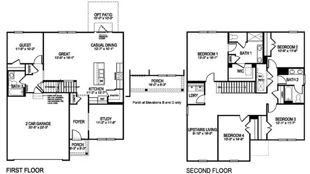
Presenting the Henley floor plan by D.R. Horton, Americas Builder. This expansive 5-bedroom, 3-bathroom residence is masterfully designed to provide "space for everyone," blending sophisticated style with the practical needs of a modern, active lifestyle. The main level is defined by its thoughtful versatility. Just off the foyer, a dedicated study offers a quiet sanctuary, perfect for a professional home office or a peaceful library. For those who host frequent visitors, the first floor also features a private guest suite paired with a full bathroom, ensuring comfort and independence for friends or multi-generational family members. At the heart of the home, the open-concept kitchen serves as a stunning centerpiece. Home chefs will fall in love with the crisp white cabinetry, elegant quartz countertops, and a massive center island designed for both m...
Stay informed with Livabl updates on new community details and available inventory.