






















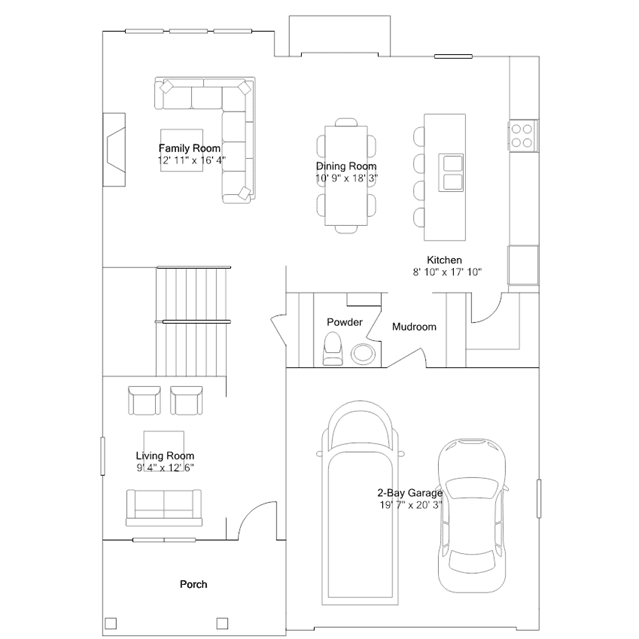
This spacious two-story home features an open floorplan shared between the family room, kitchen and dining room on the first level, with a versatile living room off the entryway. Sliding glass doors lead to the outdoor space. The second floor is host to all four bedrooms, including the luxurious owners suite, comprised of a generous bedroom, en-suite bathroom and walk-in closet.