Madaket
Willows at Brookfield
Brookfield
Mohonk
Madaket Elite
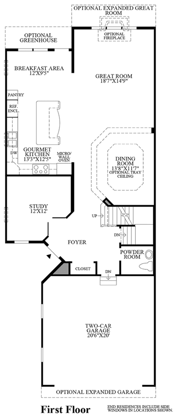
Rivington by Toll Brothers - The Meadows Collection
Danbury
Mohonk Elite
Albrecht
Hawthorne