hero-image-0
hero-image-1
hero-image-2
hero-image-3

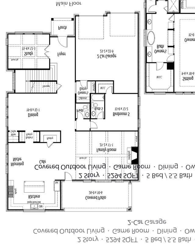
6531 Sondra

By

Cambridge Homes

   |   

M Streets and Lakewood

M Streets and Lakewood
Sold
Sold
5
5
1
5,294
6531 Sondra details
unit-banner-image
unit-banner-image
unit-banner-image
6531 Sondra is now sold.