hero-image-0
hero-image-1
hero-image-2
hero-image-3
hero-image-4
hero-image-5
hero-image-6

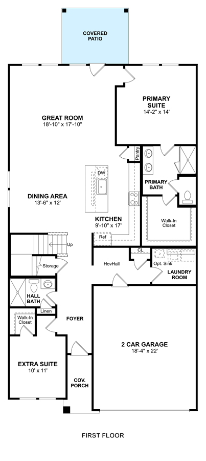
2512 Broken Bow Drive

By

K. Hovnanian Homes

   |   

Caldwell Lakes

Caldwell Lakes
Sold
Sold
5
3
2,705
2512 Broken Bow Drive details
2512 Broken Bow Drive is now sold.
Check out available nearby homes below.