hero-image-0

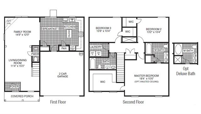
Shane Plan

Spencer Mountain Village
Sold
Sold
3
2
1
From 1,890
unit-banner-imageunit-banner-imageunit-banner-image
Shane Plan details
Shane Plan is now sold.
Check out available nearby plans below.