












































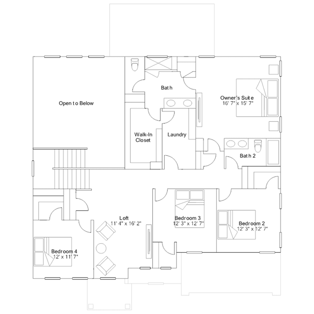
Designed for gracious living, this new two-story home features a total of six bedrooms to provide restful retreats for large and growing families. The first floor includes a modern kitchen with an airy caf and a spacious family room with convenient patio access. In a corner is a private bedroom for versatile needs, while upstairs are the remaining secondary bedrooms, a multipurpose loft and the lavish owners suite.