hero-image-0
hero-image-1
hero-image-2
hero-image-3
hero-image-4

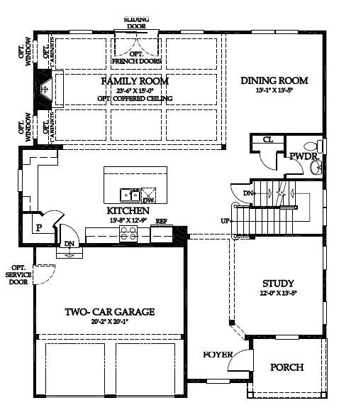
The Mason Plan

By

NVP Inc.

   |   

Mia's Meadow

Mia's Meadow
Sold
Sold
4
3
1
unit-banner-imageunit-banner-imageunit-banner-image
The Mason Plan details
The Mason Plan is now sold.
Check out available nearby plans below.