





















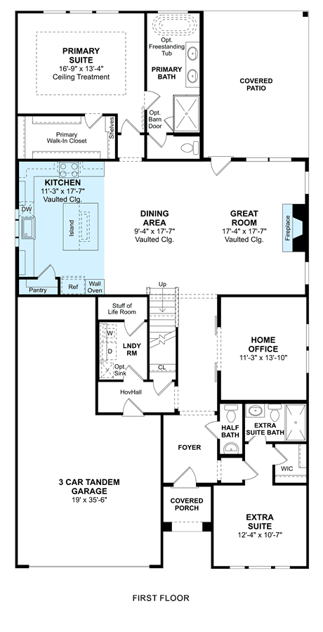
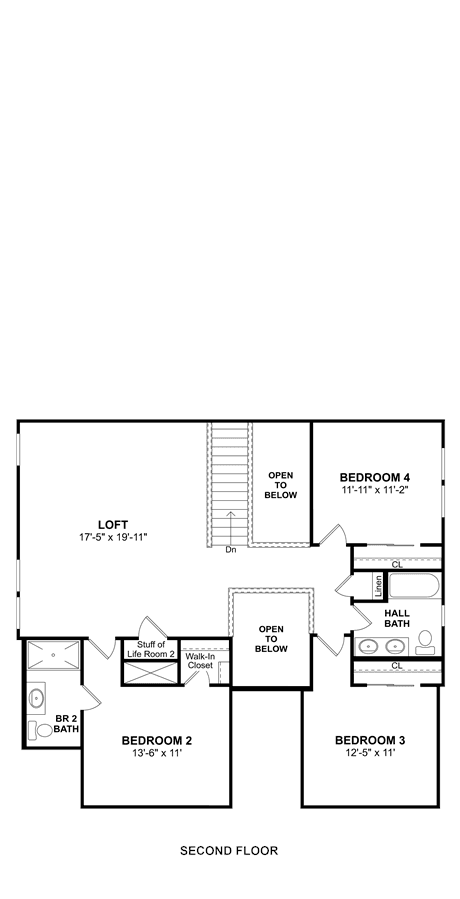
Kitchen with spacious island and dual pantries. Great room with wall of windows bringing in natural light. Private home office with dual barn doors for added privacy. Extra Suite with Extra Suite Bath for multi-generational living. Versatile second floor loft space. Primary suite with primary bath featuring double sinks. Three-car tandem garage to house additional vehicles.