hero-image-0
hero-image-1

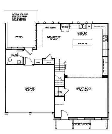
The Bishop Plan

Vickery
Sold
Sold
3
2
1
From 2,150
unit-banner-imageunit-banner-imageunit-banner-image
The Bishop Plan details
The Bishop Plan is now sold.
Check out available communities below.