






























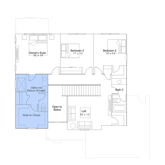
This new two-story home offers ample space for the whole family to thrive. The first floor features a family room for get-togethers, a well-equipped kitchen for inspired cooking and a study for at-home work. Upstairs are a loft that adds shared living space, a luxe owners suite and two secondary bedrooms.