




































Get additional information including price lists and floor plans.
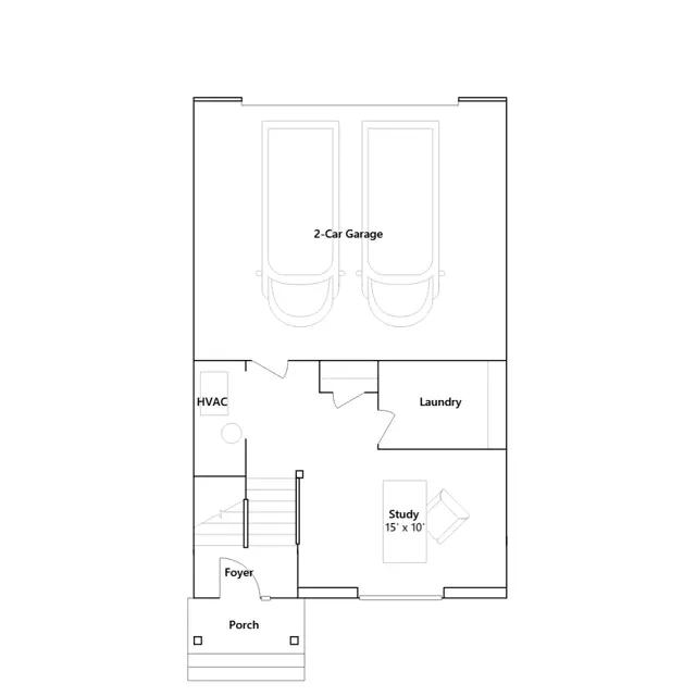
This new three-story townhome showcases a modern design with a versatile finished lower level. The first floor features an open-plan layout among the kitchen, dining room and living room, with sliding-glass doors opening out to a deck. Upstairs are two secondary bedrooms and an owners suite with a private bathroom equipped with a deluxe shower.
Stay informed with Livabl updates on new community details and available inventory.