





























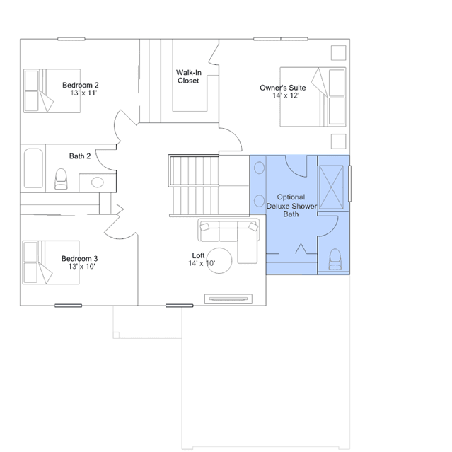
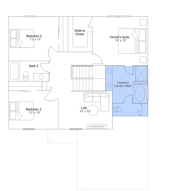
This new two-story home showcases a comfortable, modern design. The first floor features an open-concept layout among the airy family room, inviting breakfast room and well-equipped kitchen plus a versatile flex space off the foyer. Upstairs are a loft that adds shared living space and three bedrooms including the luxe owners suite.