


























Get additional information including price lists and floor plans.
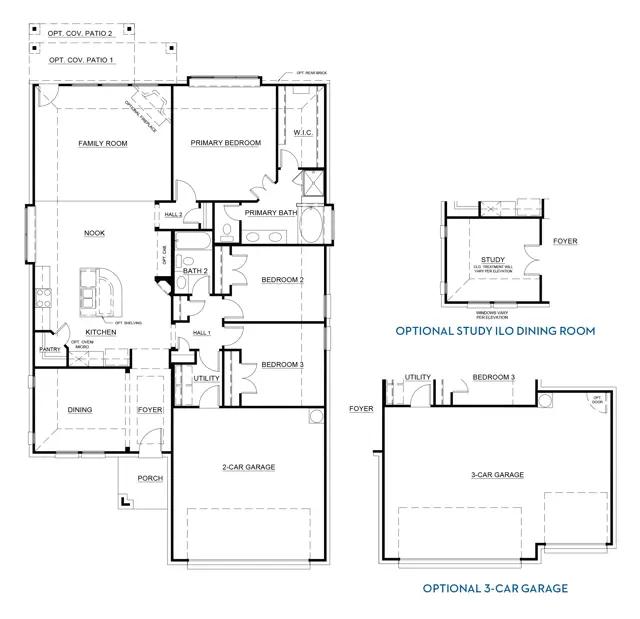
This efficient open-concept plan maximizes every inch of space in this single-story home. The foyer leads to a formal dining room or optional private study. The kitchen boasts ample storage, stainless steel appliances and a curved island, opening to a breakfast nook with a built-in window seat. The bright family room has an optional corner fireplace and leads to the rear patio. The secluded primary suite features a luxurious ensuite bathroom. Two additional bedrooms share a bathroom.
Stay informed with Livabl updates on new community details and available inventory.