















































































Get additional information including price lists and floor plans.
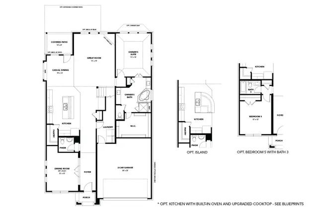
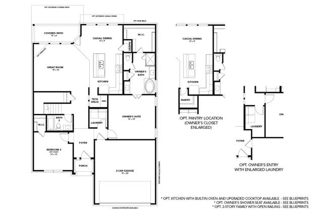
The Palm is designed to bring ease and style into your everyday life. With a bright, open layout and smart use of space, this home is both welcoming and practical. The large island kitchen with generous pantry opens to a spacious family room and dining area, ideal for entertaining or cozy nights in. The split-bedroom design places the primary suite at the back of the home for added privacy, complete with a large closet and elegant bath. Two additional bedrooms and a full bath provide comfortable accommodations for family or guests. For work from home days, a craft room or a fun kids play area, the flex room can be personalized for whatever fits your lifestyle. With its relaxed elegance and thoughtful design, the Palm makes every day feel like a breath of fresh air.
Stay informed with Livabl updates on new community details and available inventory.