











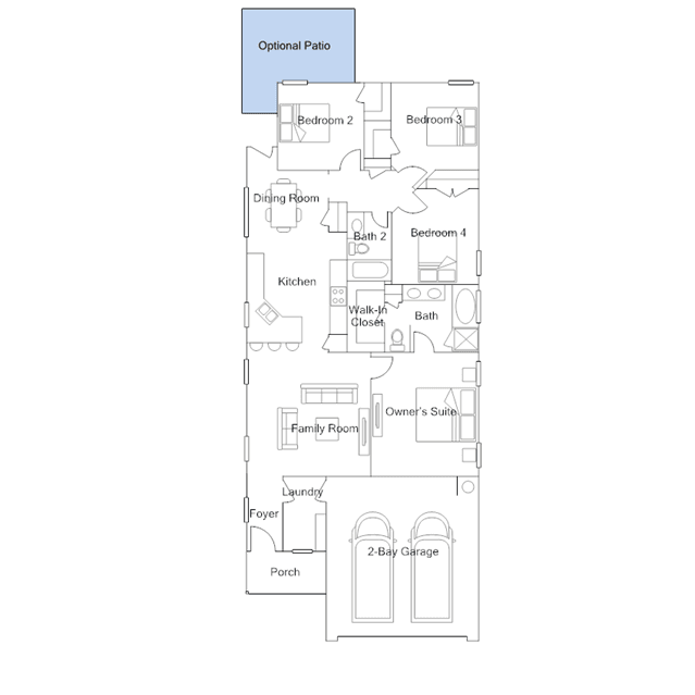
This single-story home has a smart layout for growing families. Three bedrooms share a hall bathroom at the back of the home and the owners suite is in the front with a full bathroom. Beside it is the open concept living area with a family room, modern kitchen, breakfast nook and covered patio.