







































Get additional information including price lists and floor plans.
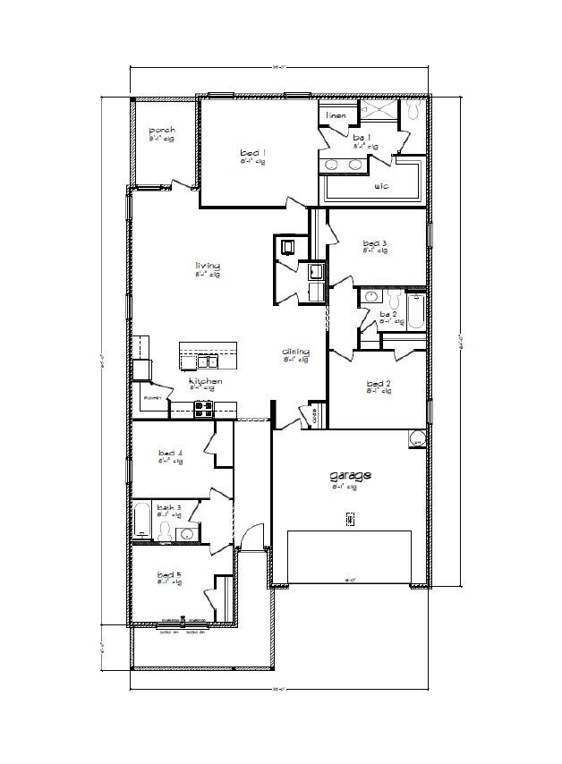
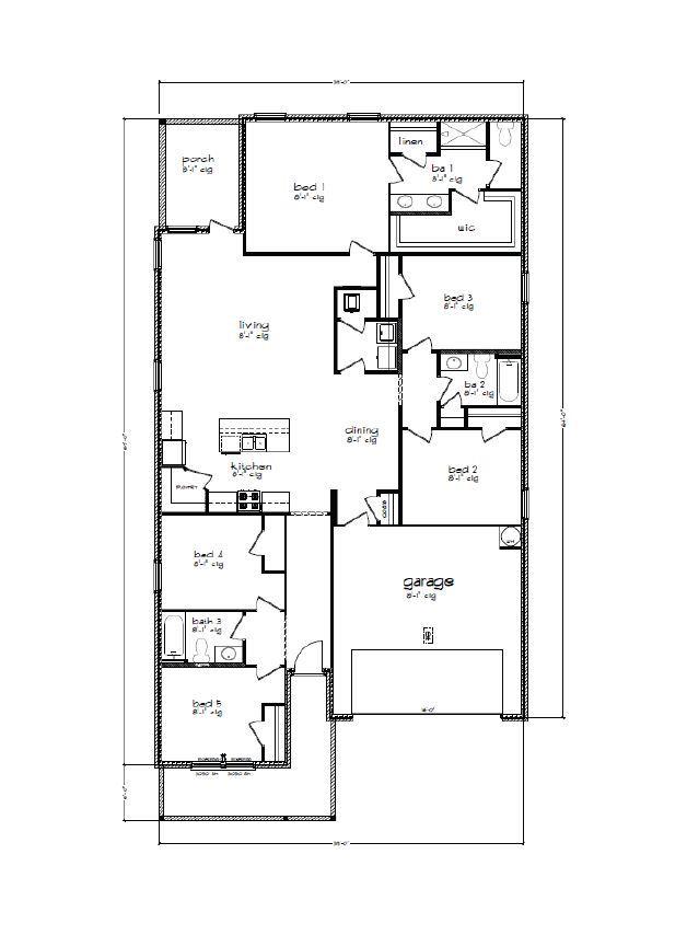
Welcome to the Lakeside Plan, at Highlands, our new home community in Crestview, Florida. Just over 2,100 square feet, this beautiful single- story home offers 5-bedrooms with 3-bathrooms, a 2-car garage, and a seamless open layout. When entering the home, youll have easy access from the entry way to the first two bedrooms and guest bathroom. Continuing through the entryway you will find a large open concept living area. The great room blends seamlessly into the kitchen, dining space, and living room. The kitchen offers plenty of space and an island for additional counter space. The kitchen features quartz countertops and stainless-steel appliances, including a stove, dishwasher, and microwave hood combo would make any home chef's day. Walking past the open concept dining space you will find a hallway the leads you to the third and fourth guest bedrooms...
Stay informed with Livabl updates on new community details and available inventory.