
































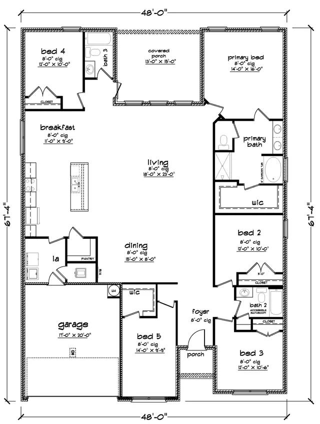
Discover the Sawyer in Spears Crossing, a new home community in Crawfordville, FL. This exceptional floor plan has 5 beds, 3 bathrooms with 2,516 square feet. This home features an open floorplan with a spacious kitchen that opens into the large living area and dining space. The kitchen features plenty of counter space with a center island, a large pantry, and is complete with the breakfast nook. The living and dining space provides the perfect space for gathering and relaxing all together. Your living space is complete with a large covered patio right off the breakfast nook. Three bedrooms and one bathroom are off of the foyer at the front of the home. Bedroom five is a great flex space that can be utilized as an office or wellness room, it also has a large walk-in closet. The fourth bedroom is in the back of the home with the third full bathroom next door,...