

















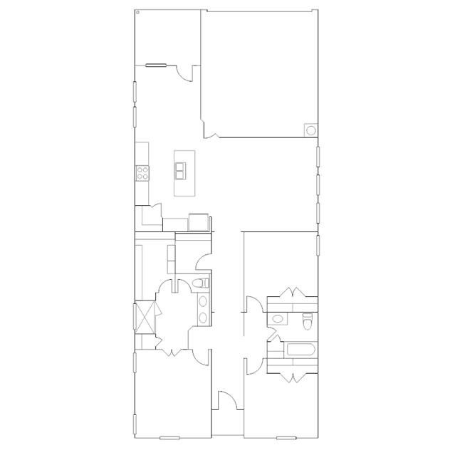
This single-story home has a convenient layout with all the essentials on one floor. Two bedrooms share a bathroom in the hall at the front of the home. The owners suite is across the hall with a private bathroom and walk-in closet. Down the hall is the open concept living room, kitchen and breakfast nook which offers access to the garage, as well as a covered patio.