
























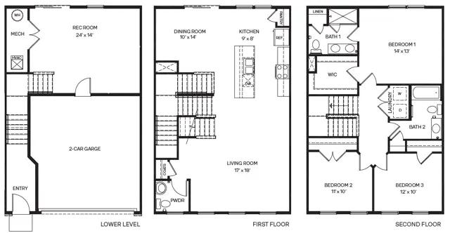
The Regent by D.R. Horton is a stunning new construction 3- story townhome plan featuring 2,208 square feet of open living space, 3 bedrooms, 2.5 baths and a 2-car garage. The convenience of townhome living meets the amenities of a single-family home with the Regent. The main level eat-in kitchen with large pantry and modern island opens to an airy, bright dining and living room. The upper level features 3 bedrooms, all with generous closet space, a hall bath, upstairs laundry, and spacious owners suite that highlights a large walk-in closet and owners bath with double vanity. The included finished rec room is the perfect additional space for both entertaining and storage! The exterior of the townhome showcases a combination of composite shingles and vinyl siding for that perfect curb appeal. Inside, you'll find smart home technology integrated throughout t...
Stay informed with Livabl updates on new community details and available inventory.