









































































Get additional information including price lists and floor plans.
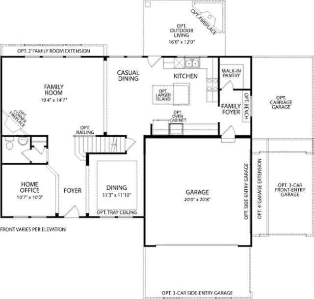
Open space and clean, modern lines characterize the Quentin floor plan, giving you that refreshed, rejuvenated feeling that home is supposed to. The study just off the main foyer is perfect for working from home. Step up the elegance in the dining room with the tray ceiling option, if you like. The spacious family room offers a comfy optional corner fireplace. The breakfast room and kitchen flow easily from the family room, reflecting how families really live today. The upstairs landing opens into the bonus room with four generous bedrooms, including the plush owner's suite, wrapping around it. All bedrooms have considerable walk-in closets and the owner's bath has the optional luxurious garden tub. And what's not to like about the upstairs laundry? For even more space, consider finishing the lower level to include an enormous recreation room and den....
Stay informed with Livabl updates on new community details and available inventory.